
Что такое дизайн-проект и зачем он нужен
Когда люди задумываются о ремонте с дизайнером, один из первых вопросов — что именно входит в дизайн-проект . Это просто красивые картинки или полноценный рабочий инструмент для строителей? На практике дизайн-проект — это не только визуализация будущего интерьера, а подробная система решений, которая помогает реализовать квартиру без хаоса, переделок и лишних расходов. Разберёмся, из чего он действительно состоит и почему каждый этап важен.
Концепция и планировочное решение
Работа начинается не с картинок, а с анализа: состав семьи и их увлечения, сценарии использования пространства, привычки, хранение, бюджет и так далее. Все это обсуждается на встрече с дизайнером и отражается в составленном техническом задании. На основе этого, дизайнер разрабатывает и предлагает несколько вариантов планировочных решений с различными вариантами расстановки мебели, а также расположения стен и зонирования пространства. Именно на этом этапе закладывается комфорт будущего интерьера жилища. Грамотно продуманное планировочное решение дает возможность избежать тесных проходов, нефункциональных мест хранения, либо их отсутствие и прочие моменты, продумать которые, без планировочного решения будет непросто. Ошибки на данном этапе планирования пространства стоят дорого, поэтому начинать планировать свой интерьер необходимо с проектирования пространства.

Визуализация интерьера
После утверждения планировки создаётся визуальная концепция — 3D-визуализация будущей квартиры. Это не просто «красивая картинка», а способ заранее увидеть сочетание цветов, материалов, света и мебели. Визуализация помогает принять решения до начала ремонта, а значит — не менять их в процессе. Когда интерьер продуман заранее, риск спонтанных покупок и стихийных решений значительно снижается.

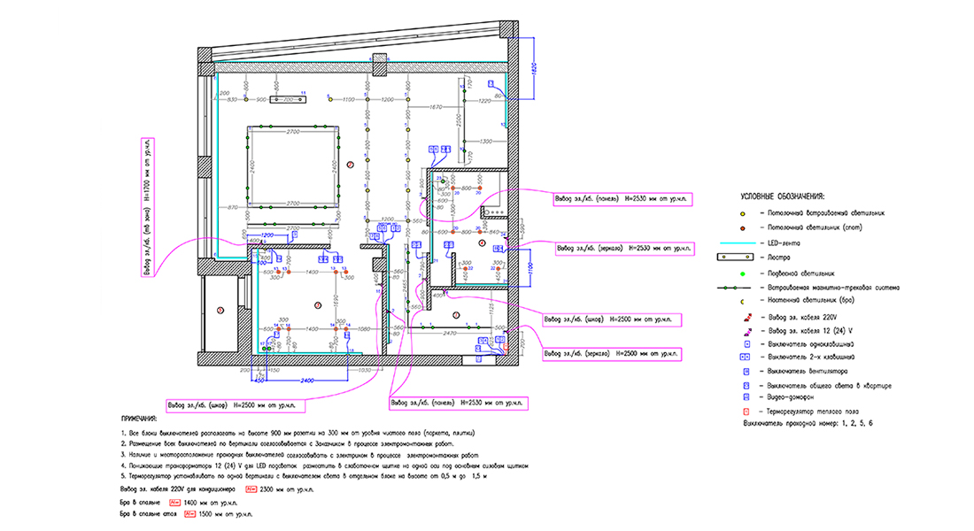
Рабочая документация
Самая важная часть дизайн-проекта — это комплект чертежей для строителей. В него входят планы демонтажа и монтажа перегородок, важные схемы электрики, освещения, размещение розеток и выключателей, планы сантехнического оборудования, планы потолков, полов, развертки стен, планы отделки помещений и прочая документация, необходимая для точной реализации придуманного дизайн-проекта. Именно рабочая документация делает проект инструментом, а не просто идеей. Без неё строители принимают решения на месте, что почти всегда ведёт к ошибкам или удорожанию ремонта.

Подбор материалов и оборудования
Дизайн-проект включает ведомость отделочных материалов и оборудования (сантехника, мебель, освещение и декор). Ведомость включает в себя информацию с точными позициями: количество плитки, объём напольного покрытия, модели светильников, артикулы материалов и т.д. Это упрощает закупку и снижает вероятность ошибок. Когда всё зафиксировано в документации, поставщики и подрядчики работают по конкретному списку, а не по устным договорённостям. Грамотный подбор заранее помогает избежать ситуации, когда понравившийся интерьер оказывается в два раза дороже ожидаемого бюджета. О том, как продуманный проект помогает сократить расходы и избежать переделок, мы подробно писали в статье «Как дизайнер интерьера в Минске помогает сэкономить на ремонте».

Авторский надзор
Иногда дизайн-проект дополняется авторским надзором. Это контроль реализации: дизайнер следит, чтобы ремонт соответствовал проекту, консультирует строителей и корректирует решения при необходимости, что значительно снижает риск отклонений от задуманной концепции. Без авторского надзора проект всё равно можно реализовать, но бывают случаи, когда заказчик не имеет возможности личного участия в реализации проекта и в данном случае, наличие контроля необходимо.

Почему полный дизайн-проект выгоднее частичных решений
Иногда кажется, что можно ограничиться только визуализацией или планировкой. Однако в реальности разрозненные решения редко работают эффективны. Полный дизайн-проект интерьера квартиры — это система и четкая концепция. Планировка связана с электрикой, электрика — с мебелью, мебель — с освещением, а всё вместе формирует цельное пространство. Когда все этапы продуманы заранее, ремонт проходит спокойнее, а бюджет остаётся под контролем.
Дизайн-проект — это не набор картинок, а подробная инструкция по созданию интерьера. Он объединяет эстетику и технические решения, помогает избежать хаоса в процессе ремонта и делает результат предсказуемым. Если вы планируете ремонт квартиры и хотите понимать весь объём работ заранее, продуманный дизайн-проект становится основой успешной реализации.
